{"type":"img","src":"https://cdn.quv.kr/xgodl5q15%2Fup%2F625e2d842dd13_1920.png","height":70}
  • 회사 소개
  • 단지 갤러리
  • 설계 갤러리
  • 주택 갤러리
  • 문의하기
  • {"google":[],"custom":["Nanum Square Round","Noto Sans KR","ChosunilboMyeongjo"]}
    ×
    섹션 설정
    {"type":"img","src":"https://cdn.quv.kr/xgodl5q15%2Fup%2F625b130f88d8c_1920.png","height":40}
  • 회사 소개
  • 단지 갤러리
  • 설계 갤러리
  • 주택 갤러리
  • 문의하기
  • 설계 개요

    ◎ 실면적: 59PY
    ◎ 1층 면적: 39PY
    ◎ 2층 면적: 20PY
    ◎ 구조: 경량목구조
    ◎ 지붕: 리얼징크
    ◎ 외부마감: 라하브라스타코(북미산)
    ◎ 내부마감: 바이오벽지, 원목마루, 자작나무
    ◎ 창호: 시스템창호

    설계 컨셉

    ◎ 거실을 분리한 모던형 주택
    ◎ 다락 및 계단 이용 수납 공간 활용
    ◎ 층고를 극대화 하여 주택의 웅장함
    ◎ 지붕선에 따라 천고 확대로 개방감 극대
    ◎ 시스템 창호 시공으로 시야 확보 

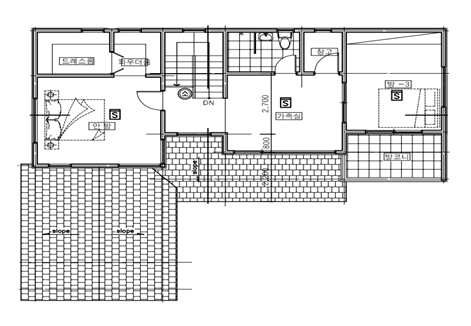
    1F

    현관, 거실, 주방, 알파룸, 다용도실, 보일러실, 창고, 침실1, 욕실

    2F

    안방, 드레스룸, 파우더룸, 욕실, 창고, 방, 가족실

    Front elevation

    Side elevation

    {"google":["Roboto"],"custom":["Noto Sans KR","Nanum Square Round","ChosunilboMyeongjo","Jeju Gothic"]}{"google":[],"custom":["Nanum Square Round","ChosunilboMyeongjo","Noto Sans KR","Nanum Gothic","Jeju Gothic"]}
    {"google":[],"custom":["Noto Sans KR","Jeju Gothic"]}